Примеры чертежей выполненных с помощью трафаретов Visio «Электрооборудование и проводка на планах»

Примеры планов расположения электрического оборудования и прокладки электрических сетей

Чертежи выполнены с использованием трафаретов Visio «Электрооборудование и проводка на планах».


Для просмотра изображений с высоким разрешением, откройте их в новой вкладке.

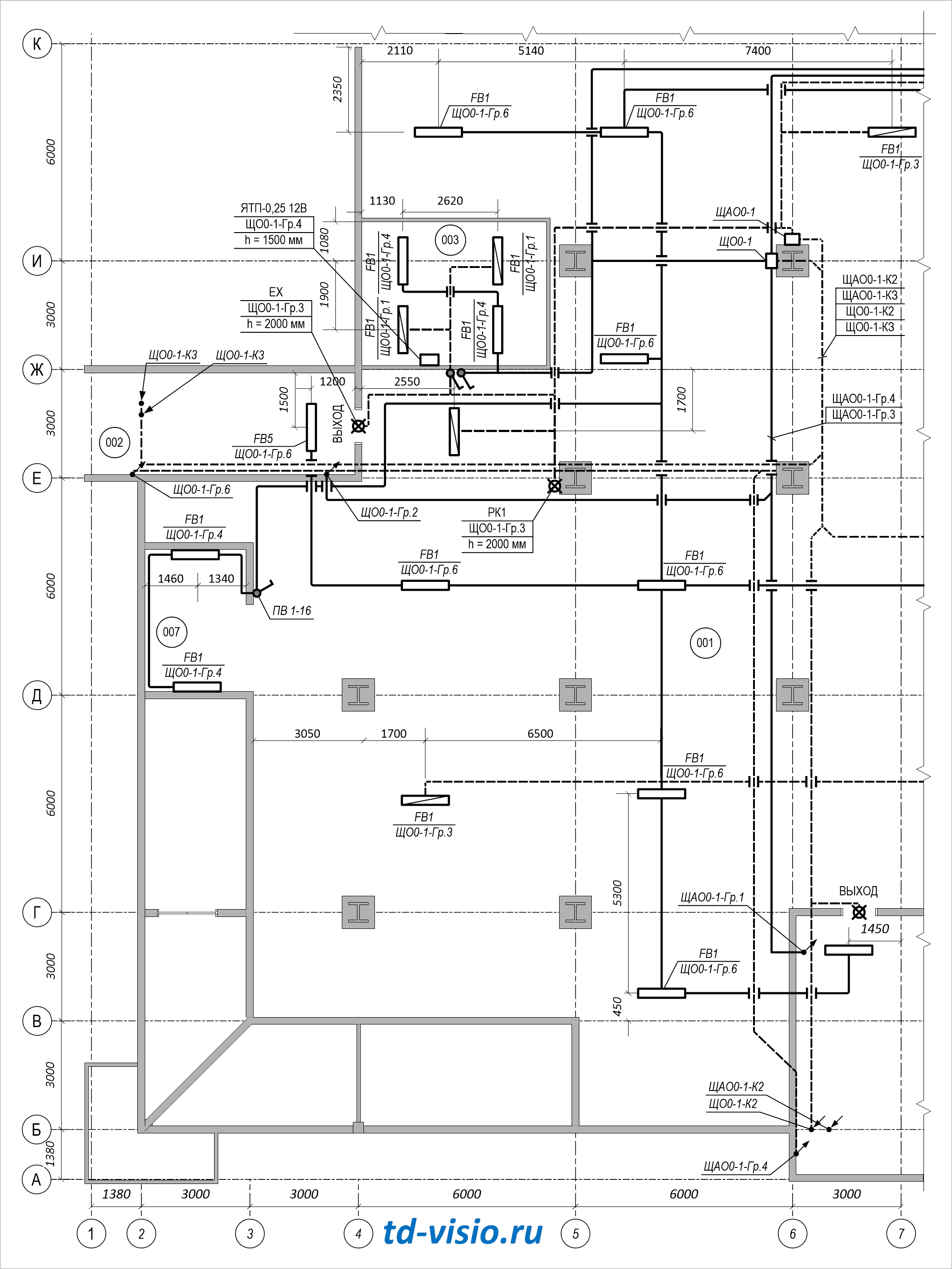
План расположения электрооборудования и прокладки электрических сетей для общественного здания, приведенный в ГОСТ 21.608-2014, рисунок Б.2

Пример плана расположения электрооборудования и прокладки электрических сетей для общественного здания, по ГОСТ 21.608-2014

План расположения электрооборудования и прокладки электрических сетей для общественного здания, приведенный в ГОСТ ГОСТ 21.608—2021, рисунок Б.1

Пример плана расположения электрооборудования и прокладки электрических сетей для общественного здания, по ГОСТ 21.608-2021

Пример оформления плана освещения и прокладки электрических сетей коттеджа (1 этаж)

План освещения и прокладки электрических сетей коттеджа (1 этаж)